Profili Foto-realistici e Vettoriali
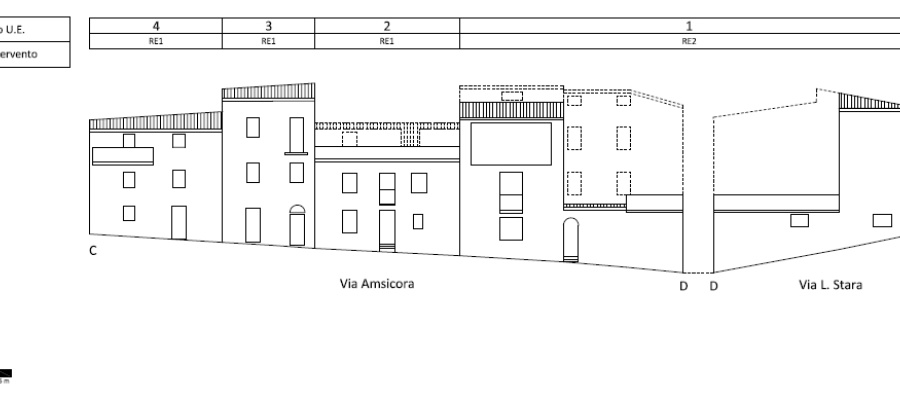
Il profilo foto-realistico è un elaborato Compucart utile a rappresentare nel dettaglio il rapporto dei singoli corpi di fabbrica nella loro successione sul fronte stradale. Esso permette di rappresentare al meglio la linea dell'edificato sul fronte strada, lo skyline senza omettere i volumi in arretrato. Rappresenta inoltre un supporto per le simulazioni in fase di progetto o per altri elaborati, come i profili vettoriali.
I profili vettoriali sono il frutto dell'acquisizione fotografica dei principali elementi architettonici (forature, balconi, marcapiano), necessari alla rappresentazione schematica delle unità edilizie che si affacciano sul fronte strada.


